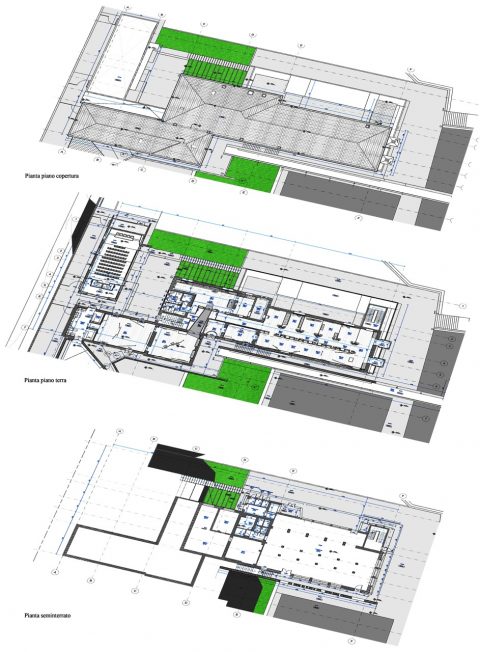
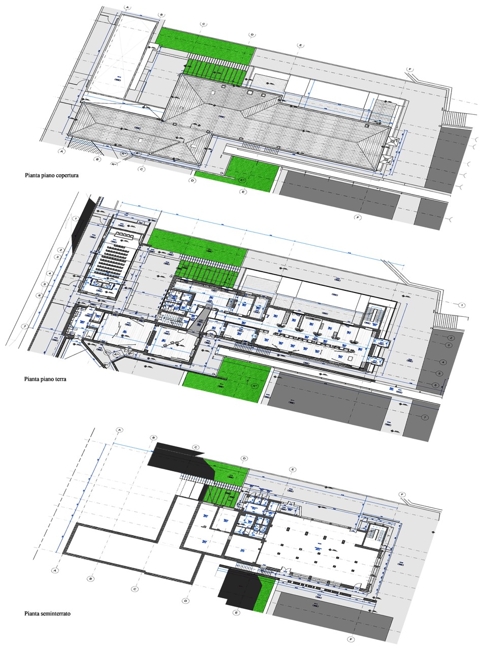
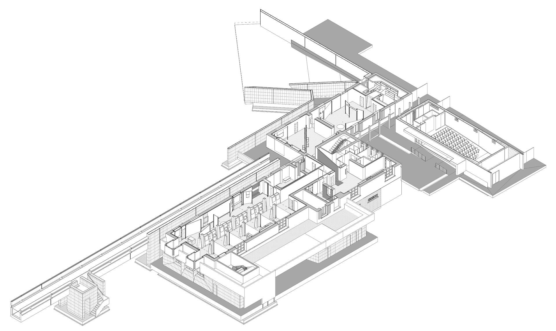
Renovation for monumental exhibition
location
San Pier d’Isonzo (GO), Italy
partnership
Parallel Digital S.r.l. – IT’S S.r.l. – BC Progetti S.r.l. – Dott. Geol. R. Valvassori
services
Design BIM,
HSE management
HSE management
status
Completed
client
Presidenza del Consiglio dei Ministri
By continuing to use the site, you agree to the use of cookies. more information
The cookie settings on this website are set to "allow cookies" to give you the best browsing experience possible. If you continue to use this website without changing your cookie settings or you click "Accept" below then you are consenting to this.











