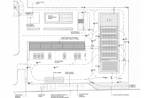
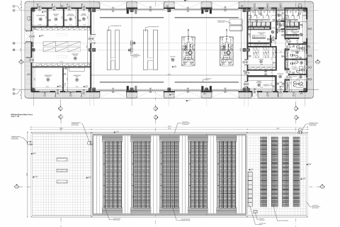
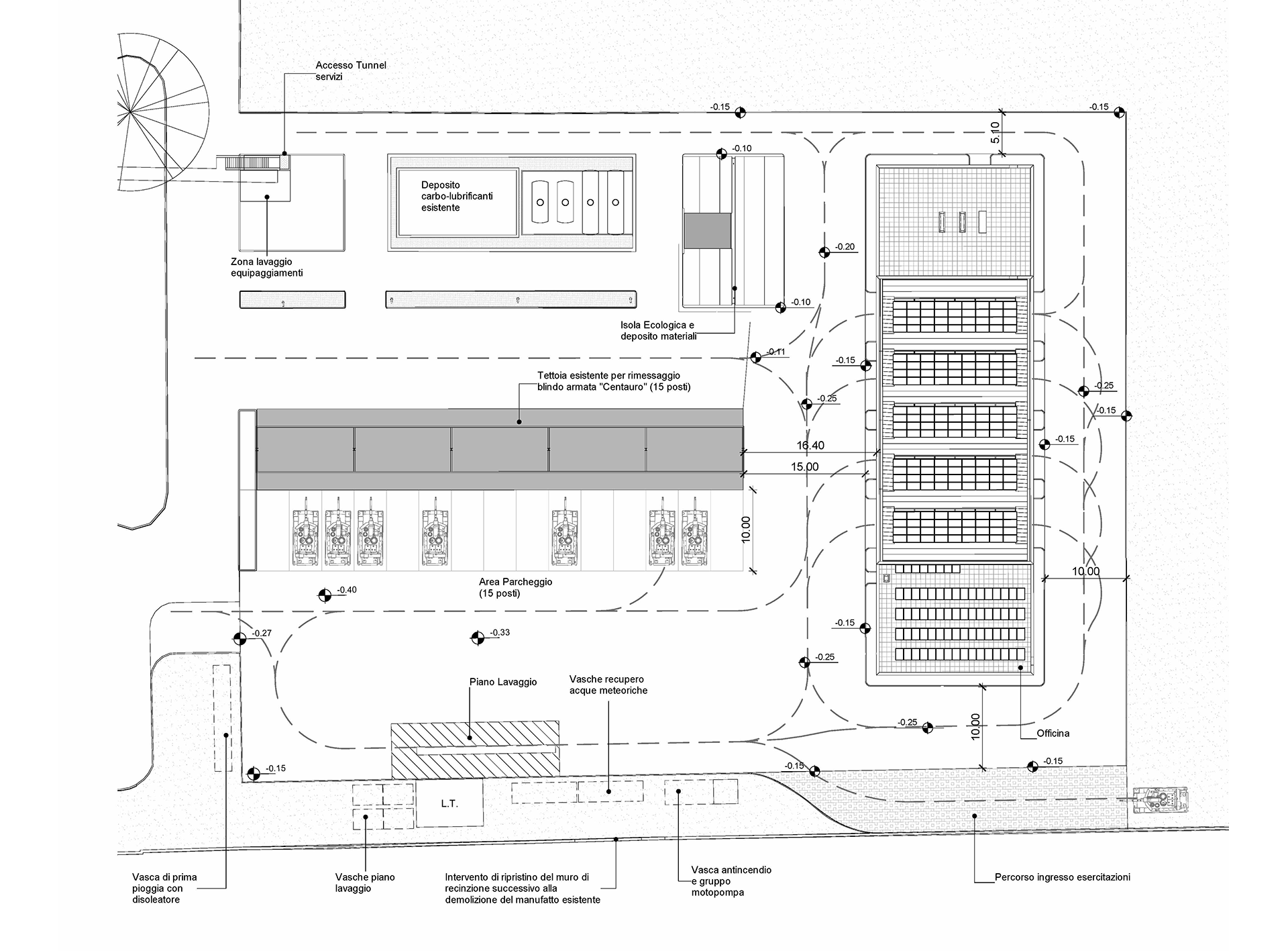
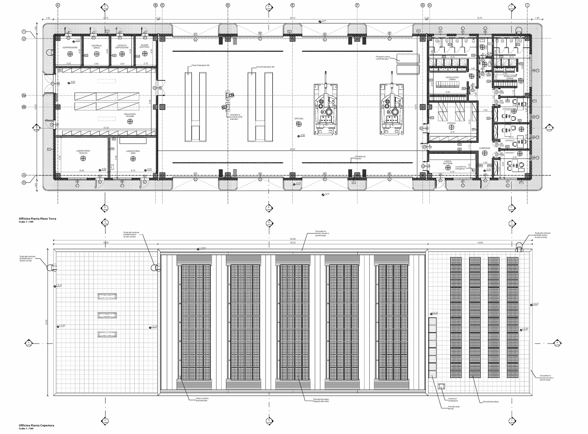
Workshop and Wash Systems for Military Vehicles
location
Grosseto (GR), Italy
partnership
E4E S.R.L. – G.EDI.S. S.R.L
services
Design,
HSE management
HSE management
status
Work in progress
client
Ministero della Difesa-Direzione dei Lavori e del Demanio
By continuing to use the site, you agree to the use of cookies. more information
The cookie settings on this website are set to "allow cookies" to give you the best browsing experience possible. If you continue to use this website without changing your cookie settings or you click "Accept" below then you are consenting to this.





