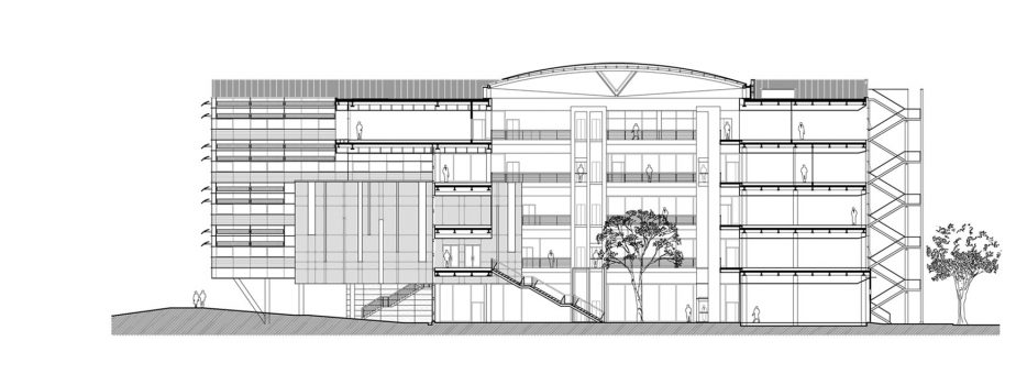
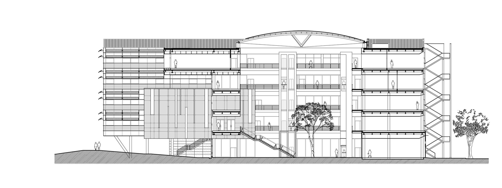
Alenia Aircraft complex
location
S. Maurizio Canavese (TO), Italy
services
Design,
HSE management
HSE management
status
Completed
client
Alenia Aeronautica S.p.A.
By continuing to use the site, you agree to the use of cookies. more information
The cookie settings on this website are set to "allow cookies" to give you the best browsing experience possible. If you continue to use this website without changing your cookie settings or you click "Accept" below then you are consenting to this.




