Academy of Taste Villa Siotto
location
Sarroch (CA)
services
Design,
HSE management
HSE management
status
Work in progress
client
Comune di Sarroch
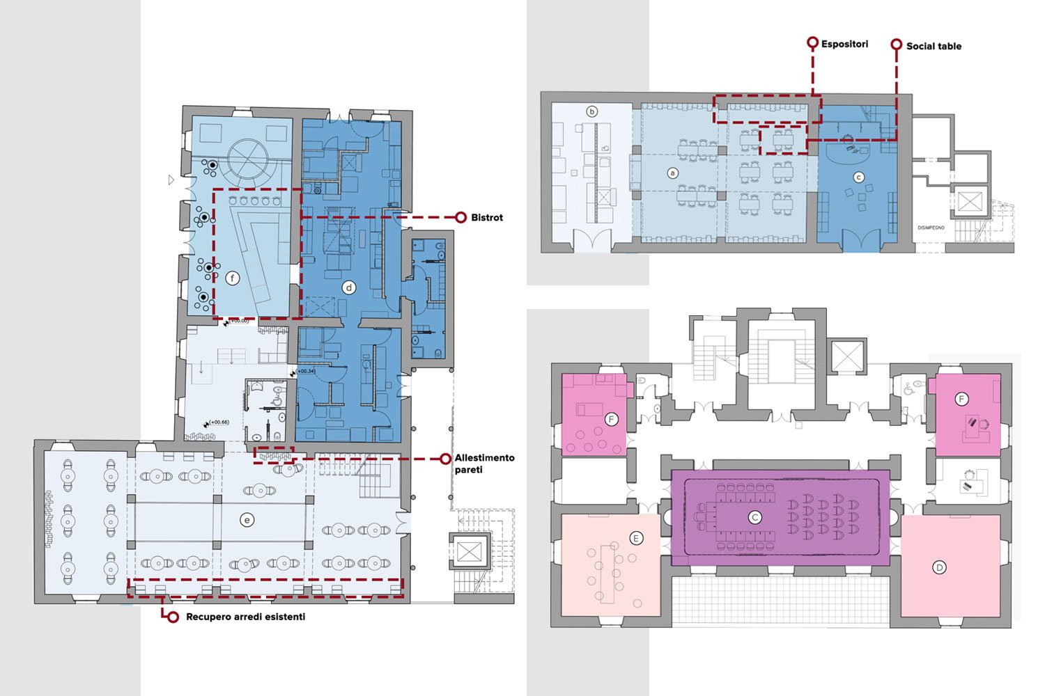
Intervention of adaptation, re-functionalization and enhancement of the building, historical and architectural complex of Villa Siotto in the Municipality of Sarroch (CA). The complex will house the Accademia del Gusto, an educational and exhibition center for all issues relating to excellence in food and wine transformation and communication connected and connected to it.
By continuing to use the site, you agree to the use of cookies. more information
The cookie settings on this website are set to "allow cookies" to give you the best browsing experience possible. If you continue to use this website without changing your cookie settings or you click "Accept" below then you are consenting to this.






