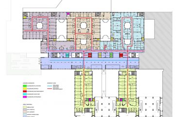
Udine Hospital
location
Udine (UD), Italy
partnership
Deerns Italia S.p.A.-Main Management e Ingegneria S.p.A.-T.H.E.M.A. S.r.l.
services
Design,
Design BIM
Design BIM
status
Completed
client
Azienda Ospedaliero Universitaria-S.M. della Misericordia di Udine
By continuing to use the site, you agree to the use of cookies. more information
The cookie settings on this website are set to "allow cookies" to give you the best browsing experience possible. If you continue to use this website without changing your cookie settings or you click "Accept" below then you are consenting to this.












