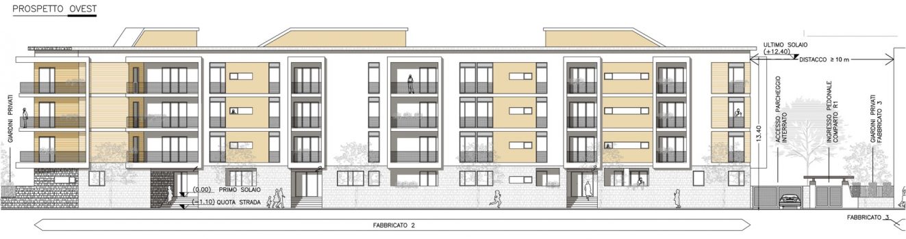
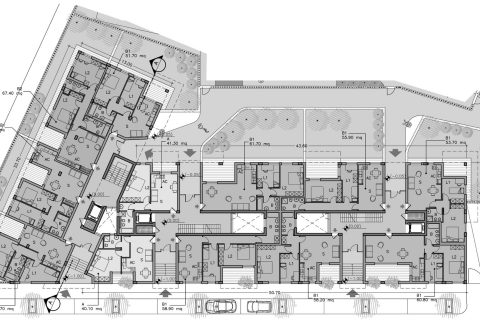
Social housing in Pietralata
location
Rome (RM), Italy
partnership
A.T.I. Stile Costruzioni S.p.A. (capogruppo) – Prof. Arch. Paolo Portoghesi
services
Design
status
Completed
client
Roma Capitale
By continuing to use the site, you agree to the use of cookies. more information
The cookie settings on this website are set to "allow cookies" to give you the best browsing experience possible. If you continue to use this website without changing your cookie settings or you click "Accept" below then you are consenting to this.







