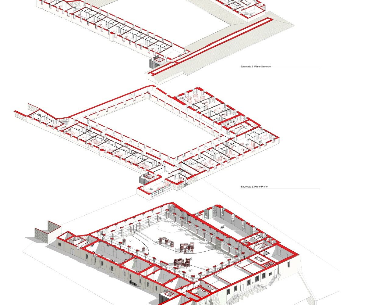
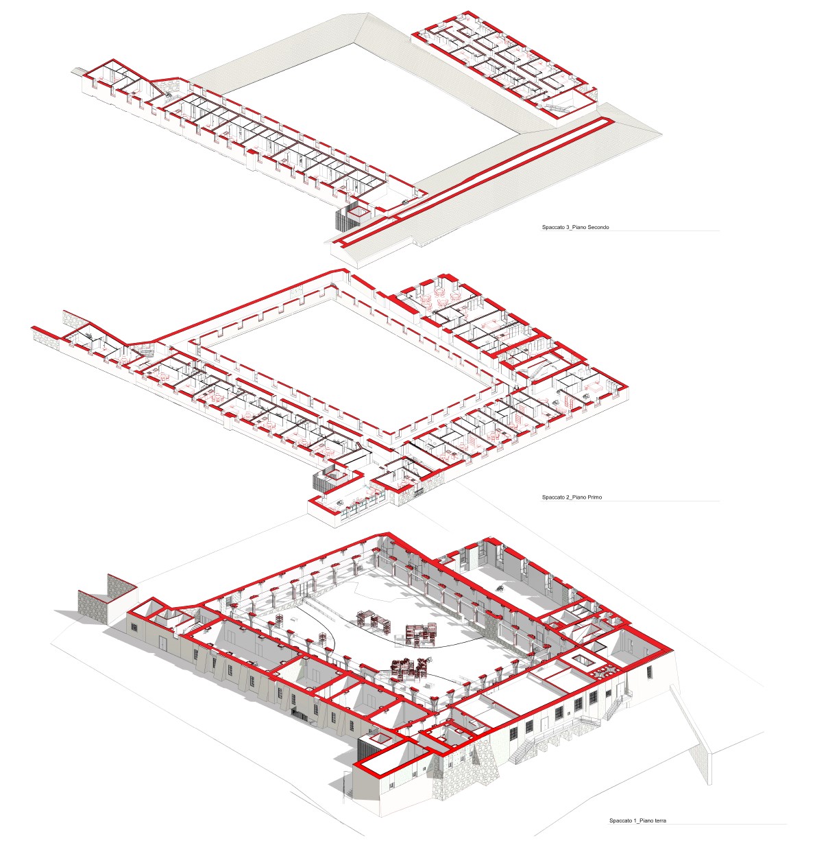
Intergenerational housing San Domenico convent
location
Ascoli Piceno
partnership
Ing. Pierluigi TATARELLA
Dott. Davide BORZACCHINI
Arch. Junior Marco SCOCCIA
Arch. Alessio Diego RAMOVECCHI
Dott. Matteo FALZETTI
Geom. Gianluca MATRICARDI
RTI:
Panichi S.r.l.
Mariani S.r.l.
Ciannavei S.r.l.
services
Design BIM
status
Completed
client
Comune di Ascoli Piceno
By continuing to use the site, you agree to the use of cookies. more information
The cookie settings on this website are set to "allow cookies" to give you the best browsing experience possible. If you continue to use this website without changing your cookie settings or you click "Accept" below then you are consenting to this.




